Dorpshuis Rijsenhout
| Jaar | Type |
| 2021 | Nieuwbouw |
| Status | Programma |
| Haalbaarheidsfase | Dorpshuis, 14 woningen |
| Locatie | |
| Rijsenhout | |
| Dienst | |
| Projectstrategieën, Stedenbouwkundig en architectonisch ontwerp, Haalbaarheidsstudies |
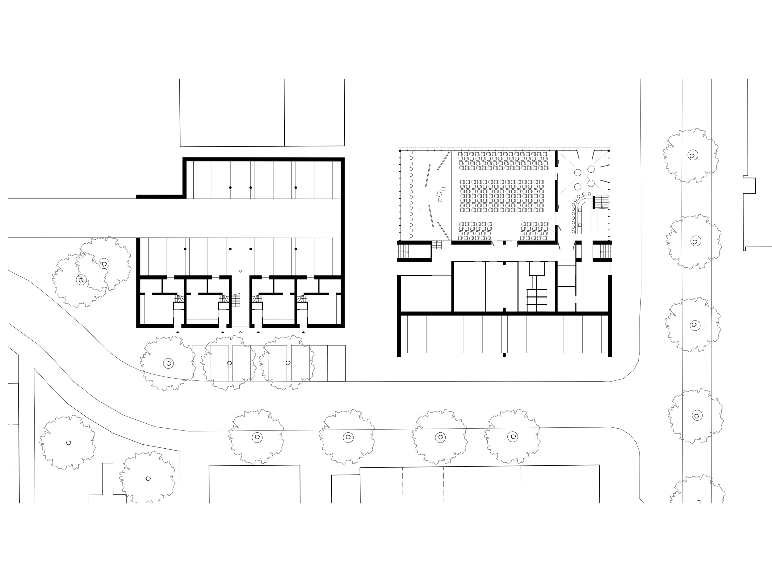
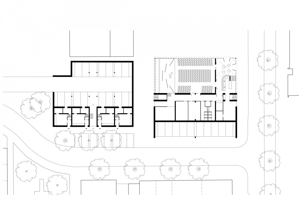
het bruisende, nieuwe centrum voor bewoners en bezoekers
Het water heeft Rijsenhout letterlijk en figuurlijk gevormd. Het oorspronkelijke lint huisvestte vele bedrijfjes ter ondersteuning en levering van de veiling in Aalsmeer. In de jaren 70 is het dorp landinwaarts uitgebreid en is er een plein toegevoegd. Dit heeft de hoeveelheid woningen doen toenemen, maar de directe relatie met het water verminderd. Naast het vervangen van het dorpshuis brengen we de relatie met het water terug en revitaliseren we het centrum van Rijsenhout.
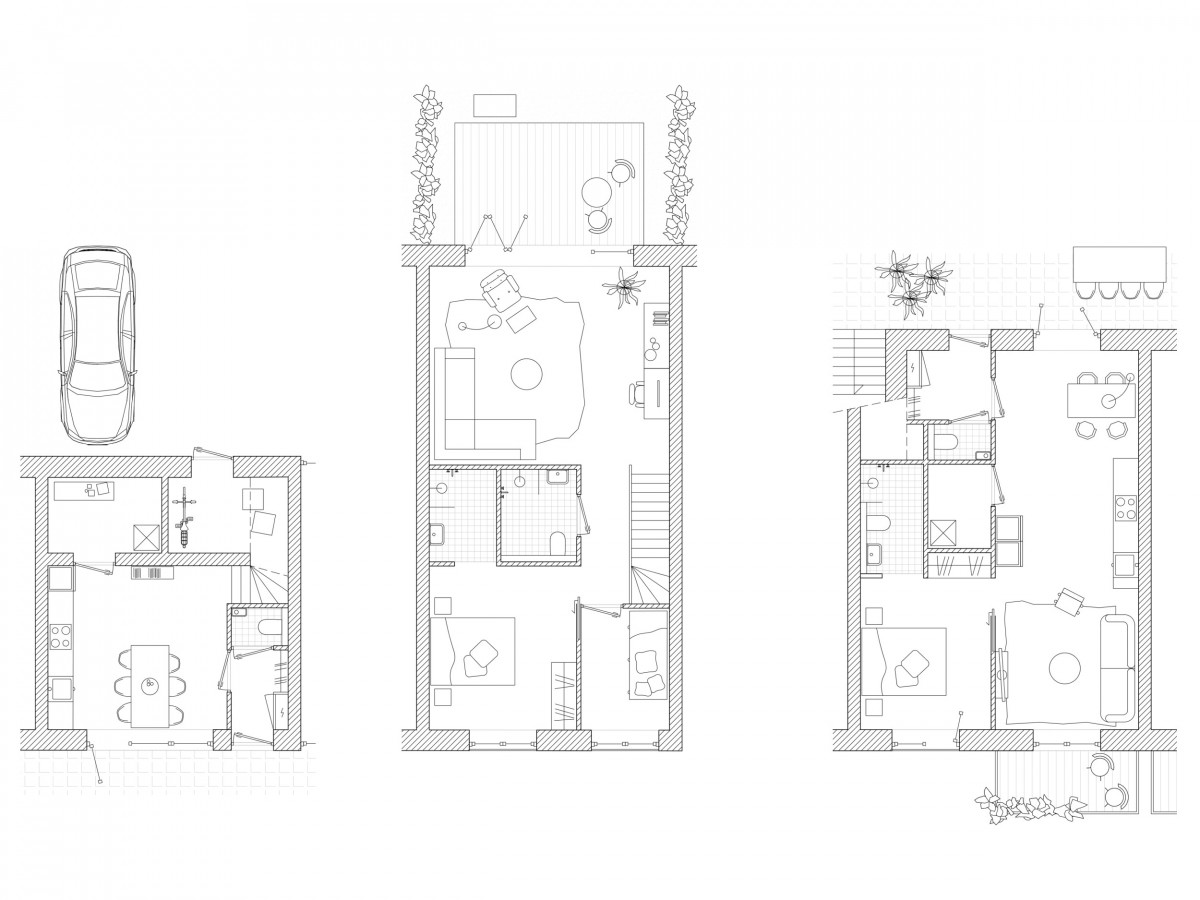
We maken het centrum autoluw en leggen ter plaatse van de huidige straat een brede groene promenade richting het water aan. Een grote aanlegsteiger maakt het eenvoudiger om Rijsenhout te bezoeken. Het bestaande dorpshuis vervangen we voor eenzelfde, maar iets hoger volume. Vanaf het maaiveld gaan trappen naar een verhoogde straat waaraan zich meerdere starterswoningen bevinden. De nieuwe zaal, die zich in hetzelfde volume bevindt, is flexibel opgezet en kan verschillende lokale verenigingen maar ook een groot dorpsfeest huisvesten. De grote, te openen geveldelen maken het eenvoudig om het plein hierbij te betrekken.
Door het blok te kopiëren en zorgvuldig te positioneren ontstaat een verbinding tussen het plein en het Rozenhof, een net gerealiseerd woonwijkje naast de locatie. In dit tweede blok bevinden zich vier maisonnettes met tuin en twee grote appartementen op de bovenste laag. De twee nieuwe blokken met de zaal en woningen vormen, samen met het voorstel voor de promenade, het centrum van Rijsenhout: een bruisende, fijne plek met een veelzijdig aanbod in woningen en publieke functies.